Oasi La Puna
COAC - Oasiurbà
Barri del Raval, Barcelona
2025
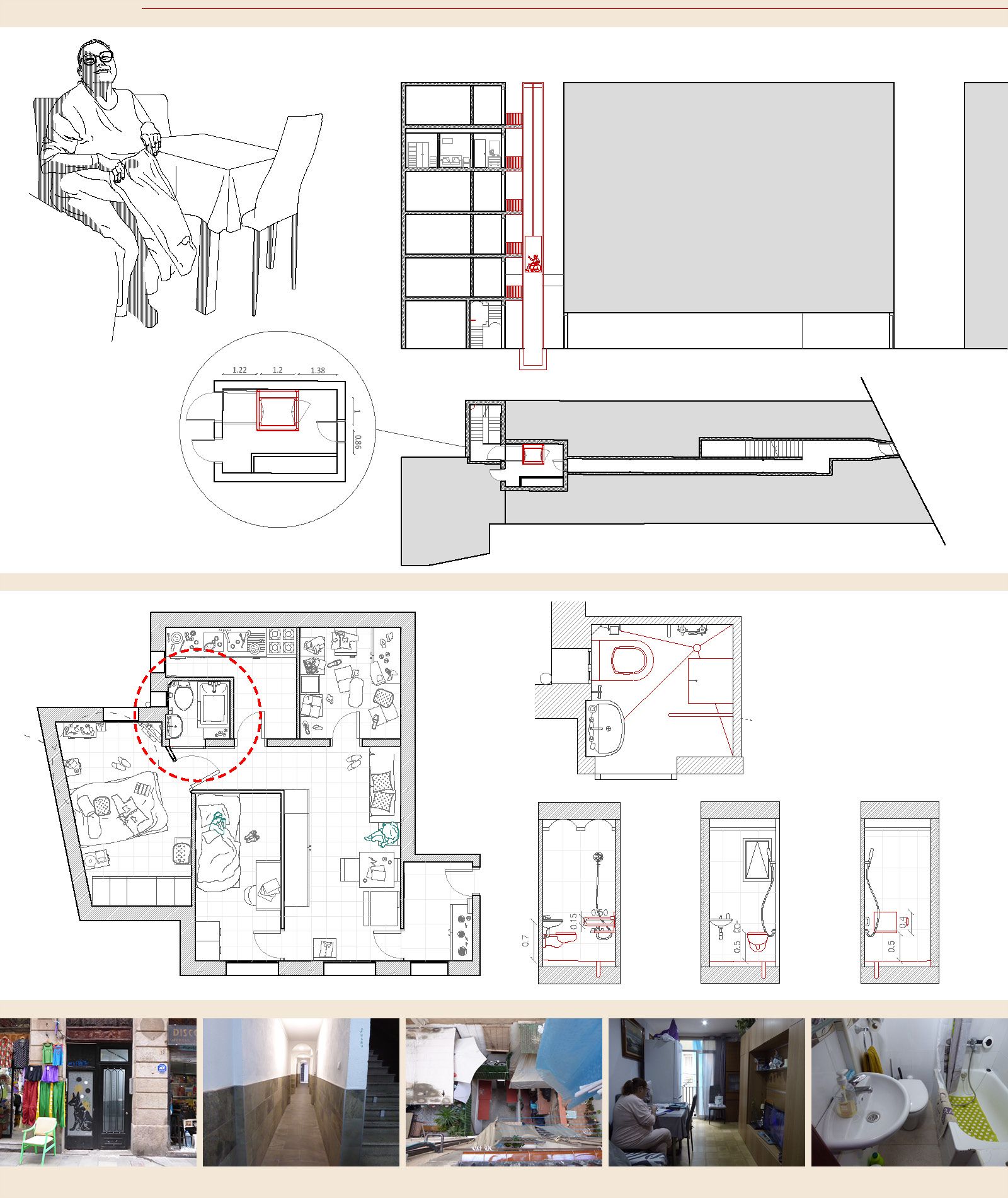
Aquest oasi vol millorar les condicions d’accessibilitat d’un habitatge situat al barri del Raval, al carrer Riera Baixa, 10. En aquest habitatge hi viu una família monoparental; la propietària de l’immoble i el seu fill menor d’edat. Tots dos tenen un grau de discapacitat reconeguda, del 66% i del 72% respectivament. La principal problemàtica de l’habitatge és l’accessibilitat. Ella té dificultats per pujar i baixar desnivells, ja sigui els de l’escala d’accés a l’habitatge o el propi accés a la banyera. A més, el bany presenta un inodor a una altura menor de la que necessitaria per a la seva adequada mobilitat. Per aquests motius, el projecte planteja l’estudi de la incorporació d’un ascensor a la finca i la reforma del bany per millorar-ne l’accessibilitat.
Destaquem:
Pel que fa a l’estudi de l’ascensor, aquest es col·locaria al pati previ d’accés a l’edifici, separant-se de la porta d’accés i creant unes passarel·les exteriors per accedir directament al vestíbul de cadascun dels habitatges. Com que aquesta intervenció serà a nivell comunitari i no té una previsió clara de futur, es proposa fer un “mentrestant” al nucli de l’escala. Ella ja intenta agrupar totes les seves gestions per reduir al mínim els viatges, així que, per facilitar-los, es proposa col·locar uns seients de fusta abatibles als replans de l’escala, per tal de disposar de punts de descans durant el recorregut. Pel que fa a la intervenció al bany es proposa l’eliminació de la banyera per col·locar-hi un plat de dutxa d’obra i reduir al màxim el desnivell d’accés, a més d’instal·lar-hi barres de suport i una cadira plegable per millorar la seguretat en les tasques d’higiene. Per fer-ho, es modificarà també l’inodor per guanyar alçada a l’hora d’usar-lo.
Moltes gràcies als voluntaris: Paula Maria Arnau González, Cristian Yair Florez Rozo, Leire Ayala Garcia i a l’Eric Botbol.
Valors

Aprenentatge i servei

Proximitat

Mirada integradora

Accessibilitat

Redistribució de recursos
Galeria

Col·laboradors





Projectes relacionats

Rehabilitació Sant Pacià 21
2024-Actualitat
Assessoria tècnica i legal, Gestores de la rehabilitació, Arquitectura i sostenibilitat

Projecte SALT
2024-Indefinit
Investigació i Participació
Assessorament immobiliari per locals comercials de proximitat
2021-Actualitat
Assessoria tècnica i legal, Negociació i mediació, Procediment judicial i administratiu

Rehabilitació Andrea Dòria 49
2025
Assessoria tècnica i legal, Negociació i mediació, Gestores de la rehabilitació
Oasi Siwa
2024
Assessoria tècnica i legal, Negociació i mediació, Investigació i Participació

Guia del Llogater
2023-24
Investigació i Participació

Oasi Huacachina
2021
Assessoria tècnica i legal, Negociació i mediació, Arquitectura i sostenibilitat

Reforma Bar Resolís
2022
Arquitectura i sostenibilitat, Assessoria tècnica i legal

Rehabilitació integral Sant Ramon 2
2023-24
Gestores de la rehabilitació, Arquitectura i sostenibilitat, Negociació i mediació

Pla Local d'Habitatge de Colldejou
2023
Assessoria tècnica i legal, Arquitectura i sostenibilitat

Grup de Treball d'Habitatge
2023-Indefinit
Investigació i Participació

Protegint la Fauna Urbana: defensa legal per evitar la poda d’una parra verge al Poblesec
2024
Assessoria tècnica i legal, Negociació i mediació, Procediment judicial i administratiu, Arquitectura i sostenibilitat, Investigació i Participació

Oasi Ubari
2020
Assessoria tècnica i legal, Arquitectura i sostenibilitat, Negociació i mediació

Recurs contra l'ampliació del MACBA
2022-Actualitat
Assessoria tècnica i legal, Procediment judicial i administratiu
Estudi ReeHabilitant
2020
Investigació i Participació

Taller Llei del Lloguer
2019
Investigació i Participació

Oasi Chebika
2018
Investigació i Participació
Oasi Fint
2017 - 2019
Investigació i Participació

Estudi Intramurs
2020
Investigació i Participació

Defensa judicial contra el desnonament d'una dona de 93 anys
2022-2023
Assessoria tècnica i legal, Negociació i mediació, Procediment judicial i administratiu

CO-HAB Raval
2021
Investigació i Participació

ASSESSORIA COVID-19
2020
Assessoria tècnica i legal

8M La Dona a l’Habitatge
2019
Investigació i Participació
Vols parlar?
Som un equip d'arquitectes i advocades dedicades a l'Habitatge.